土地古ビル付売主品川区
品川区西五反田六丁目 土地(古ビル付)
不動前駅徒歩7分、地積136.54㎡の土地(古ビル付)

Overview
ご提供いただいた物件概要書をもとに整理したサンプル掲載です。不動前駅徒歩7分、西五反田六丁目の土地(古ビル付)で、地積は136.54㎡。既存建物は鉄筋コンクリート造陸屋根地下2階付4階建、延床面積409.44㎡です。敷地の一部約16.81㎡が都市計画道路(事業決定)に掛かっており、有効宅地面積は約119.74㎡(36.22坪)と記載されています。最新条件や現況確認はお問い合わせベースでご案内する想定です。
Detailed Documents & Views




Property Details
- 物件名
- 品川区西五反田六丁目 土地(古ビル付)
- 価格
- 23,800万円
- 所在地
- 東京都品川区西五反田六丁目18番17号
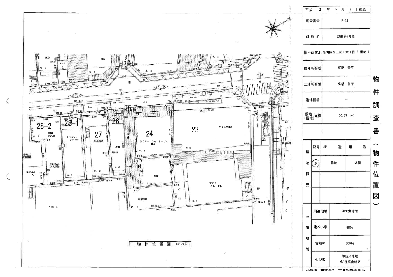
- 地番
- 品川区西五反田六丁目161番11
- 交通アクセス
- 東急目黒線「不動前」駅 徒歩7分 / 東急池上線「戸越銀座」駅 徒歩12分
- 権利
- 所有権
- 地目
- 宅地
- 地積
- 136.54㎡(41.30坪)
- 有効宅地面積
- 約119.74㎡(36.22坪)
- 接面道路
- 北西側公道 約8.0m
- 構造
- 鉄筋コンクリート造陸屋根地下2階付4階建
- 種類
- 事務所・作業所・倉庫
- 各階面積
- 1階 89.93㎡ / 2階 89.93㎡ / 3階 89.93㎡ / 4階 7.63㎡ / B1階 42.09㎡ / B2階 89.93㎡
- 延床面積
- 409.44㎡(123.85坪)
- 築年月
- 昭和38年4月
- 現況
- 古ビル有り
- 用途地域
- 準工業地域
- 建蔽率 / 容積率
- 60% / 300%
- 防火地域
- 防火地域
- 高度地区
- 第三種高度地区
- 引渡し
- 相談
- 取引態様
- 売主
- 備考
- 敷地の一部(約16.81㎡)が都市計画道路に掛かっており、当該部分の東京都買取価格は23,816,213円(2026年1月時点)と記載。

